Potable water plant of municipal utilities
2x 150 m³ pipe containers made of PE100 pipe by FRANK FTW - as storage tanks for the new waterworks “Vogelhölzle”
Planning view of the waterworks with pipe container from above
The municipal utilities in Dillingen-Lauingen (DSDL) started to replace the old waterworks “Vogelhölzle”, originated in 1962, by a new construction in autumn 2015. The old waterworks were situated in the setting range (ground water protection zone), which is, under current regulations, not permitted anymore. Since October 2016 up to 30.000 people are provided with drinking water from the new waterworks.
The planning engineering company PfK Ansbach GmbH planned a reinforced concrete building with a pent roof for the waterworks. In this building the complete piping, water treatment (oxidation) and the pumps are stored. The natural water is pumped to the waterworks from two 12m deep wells. If needed, up to 40 l can be conveyed per second. In the new waterworks the water flows through the oxidation and is then stored in two storage tanks. From there the potable water is pumped into an elevated tank and then reaches the consumer.
Planning draw of the waterworks
The two storage tanks, each with 150 m³ capacity, were planned as pipe containers completely made from PE100. The connection of the two pipe containers was already made during the shell construction into the outer wall of the waterworks.
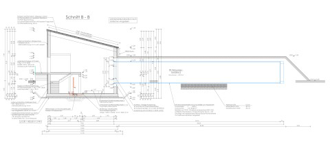
Extract from workplan - View of pressurized door
In order to do so, do so, a ground water tight and tensile cross-wall junction of the system FRANK Kunststofftechnik was used. Due to the pliable material behaviour of PE, pipelines or tanks of this material can be connected to concrete buildings without articulation pieces. The following advantages of pipe containers from PE were decisive for the planning:
- Fabrication only with materials that are approved for the contact with potable water
- Easy geometry
- High level of prefabrication; short installation time
- Long operating life
- Smooth surface;easy cleaning
- Easy connection / combination with cast-in-place concrete structure
Extracts from the workplan - view and profile with pressure door, overflow, stairs and podest etc.
After public tendering, the order for the construction of the new waterworks was awarded to the company Carl Heuchel GmbH & Co. KG from Nördlingen.
After ordering the two pipe containers from the Frank GmbH the FRANK Kunststofftechnik GmbH in Wölfersheim started the construction documentation. For the technical equipment of the containers there were exact specifications, which were implemented by a production drawing and released by the planner. Significant equipment features of the two containers were:
Spiral pipe made from PE100 with co-extruded blue inner layer – raw material with approval
Inner diameter DN 3000 - 150 m³ effective volume
Construction length approx. 23.6 m
End cover and functional wall
Completely factory-made prefabricated and delivered to the construction site in one piece
Pressurized door stainless steel DN 1000 for underwater entry
Stairs with platform from stainless steel 1.4571
Complete piping of the container from the inside with connection flanges of the functional wall – in detail:
- Bottom outlet
- Extraction with strainer
- Filling pipe
- Air tube and vent line
- from stainless steel
- Inspection glass
- LED lights
After approval of the construction documentation the two pipe containers were fabricated in one piece in the factory. After performed factory approval test by the planner and the client the two pipe containers were delivered with special transport. The containers had an outer diameter of 3,3 m and a length of 24 m.
On site the company Heuchel had already completed the shell construction in such a way that the two pipe containers could be unloaded and transferred with a mobile crane. As support for the pipes a gravel base layer with sand bedding below was made. During the transfer the pipes were placed correctly into the respective block-outs in the building. These block-outs were concreted later on.
Integration of the two functional walls in the outer wall of the waterworks
View through inspection hole on water surface
Finished waterworks “Vogelhölzle” with building and pipe containers under embankment

Functional walls integrated into the plant engineering in the waterworks
During the installation the containers were covered with the high-load fabric ‘Kortex’ by FRANK GmbH. By doing so the buoyancy safety can be assured during the production of the embankment.
This was necessary since the construction site was in a flood area.
After finishing the ground and structural works the expansion of the waterworks started with plant engineering and piping. The two functional walls of the pipe containers were integrated into the plant engineering through grids, so that an excellent operability could be achieved. Due to the short construction time, avoidance of budgetary overruns and the quality of the construction, the client and planner were completely satisfied.
Placement of the pipe containers on previously prepared soil

Delivery of the two pipe containers with special transport
Partner:
Planner: Engineering office PfK Ansbach GmbH
Construction company: Carl Heuchel GmbH & Co. KG, Nördlingen
Settlement partner: Richter + Frenzel TBU GmbH
For further information on this subject please contact : This email address is being protected from spambots. You need JavaScript enabled to view it.